活動
クラウドファンディングに挑戦!!
【トンカンテラスのクラウドファンディングの挑戦が始まりました!】
https://readyfor.jp/projects/tonkanterrace
トンカンテラスは福井市が主宰しているXSCHOOLという小さなデザインスクールから生まれたプロジェクトなのですが、2019年のプロジェクト発表当時、東京と福井のそれぞれの会場で約150人以上の方々の前で「トンカンテラスのクラファンをスタートします!!」と宣言したにも関わらず、結局は実行することができなかったのですが、
それから約2年。
当時は会社員だった代表の黒田が、東京から福井に戻り、地域活動としてトンカンテラスをスタートさせ、その後脱サラし、会社を設立。今年の4月に、生業としてトンカンテラスをスタートすることができました。目まぐるしく変わる状況の中で、たくさんの方々に応援していただき、ここまで突っ走ってくることができました。
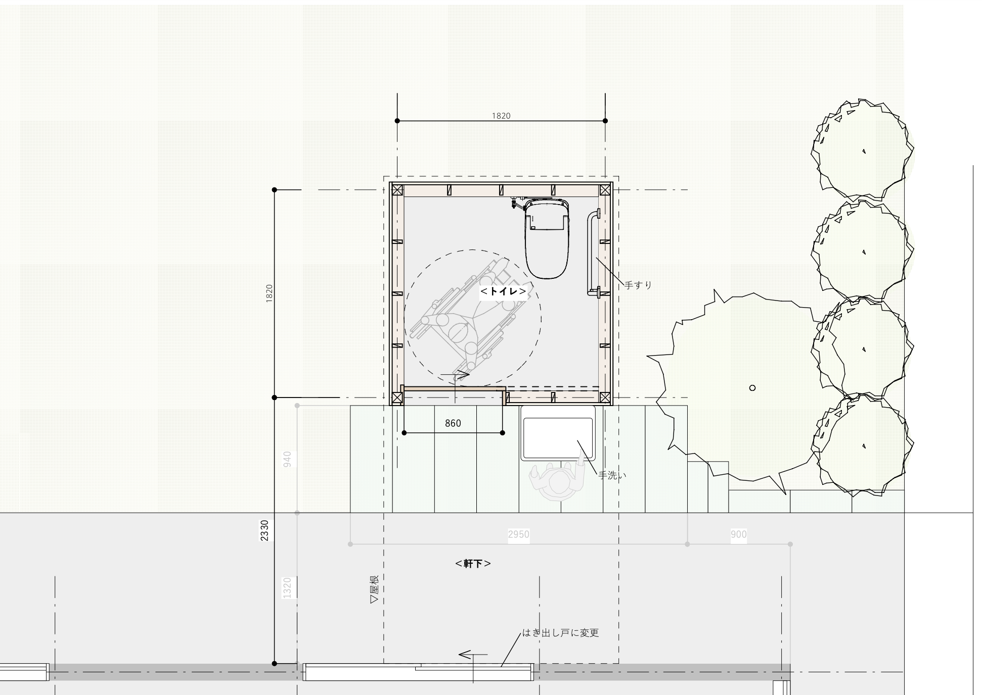
トンカンテラスの内装は、地域の方々に協力していただき、棚の解体や、壁の塗装などを行っていただきまして、なんとかものづくり工房としてオープンさせることができたのですが、実は【今現在トイレがありません。】
そんな中で老若男女問わず、障害の有無を問わないものづくりの交流場所として、今後も地域の方々に利用していただきたいという思いで車椅子の方でも使用できる「バリアフリートイレ」を整備することにいたしました。

しかしながら、脱サラし、退職金を全てつぎ込んでいる身としては、資金がありません。そこで、今回クラウドファンディングという形で皆様にご支援をいただき、一緒に整備できればと考えました。
ただ支援していただいて、それで終わりという関係性ではなく、ものづくりの製作キットリターンを楽しんでいただいたり、海洋プラスチックごみをアップサイクルしたプロダクトってどんなものなのかを手に取っていただいたり、今後トンカンテラスを利用する方は、回数券をリターンとして受け取っていただいたりと、トンカンテラスが取り組んでいる活動の現在地を知っていただき、今後も色んな形で関係を紡いでいけるようにしていきたいと考えております。
トンカンテラスの回数券
海洋プラスチックを使ったカラビナ
行灯製作キット
ぜひご支援のほど宜しくお願いいたします!
ものづくりが好きそうな方に口コミしていただいたり、SNSなどでシェアしていただけるだけでも嬉しいです!
一緒にクラファンの行方を楽しんでいただければ幸いです。
最後まで読んでいただきましてありがとうございました!
https://readyfor.jp/projects/tonkanterrace
▼お申し込みはこちら
https://readyfor.jp/projects/tonkanterrace


